Leave a Message

Thank you for your message. We will be in touch with you shortly.

Explore Our Properties

Property Description

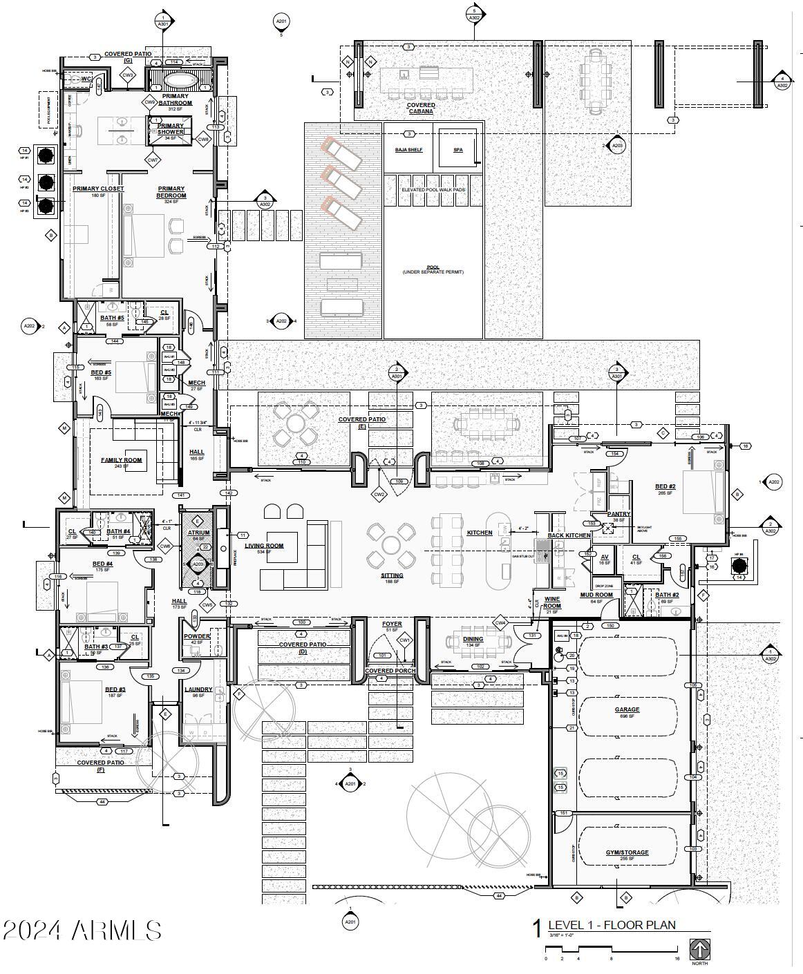
Welcome to your dream resort! A breathtaking contemporary new build by renowned Design Tank architect, Tyler Kuenzi. This property combines modern elegance with unparalleled comfort. Spanning 5200 sq ft, this exquisite custom built residence features 5 spacious bedrooms, each with its own en-suite bath featuring stunning, fixtures, plus an additional powder room for guests.

As you enter, you're greeted by an airy open-concept living space flooded with natural light. The state-of-the-art kitchen boasts Subzero/Wolf/Cove appliances, Shinnoki cabinetry, and a generous Taj Mahal quartz island perfect for entertaining. The adjoining dining area flows seamlessly into the inviting living room, highlighted by a stylish fireplace and large Western brand windows that showcase picturesque view. The master suite is a true retreat, complete with a luxurious spa-like bathroom featuring dual vanities, a soaking tub, and a walk-in shower. Each additional bedroom offers ample closet space and beautifully designed baths, ensuring comfort and privacy for everyone.

Step outside to the beautifully landscaped resort-style backyard, including a private pickle ball court, ideal for alfresco dining or simply relaxing in your private oasis. Additional highlights include a large pantry, atrium, a spacious laundry room, and a four-car garage.

Located in a desirable 85254, this home is just minutes away from top-rated schools, parks, and vibrant shopping and dining options.

Overview

Property Status
Sold
Lot Size
1 Acres
MLS ID
6764263
Property Type
Residential
Year Built
2024

Features & Amenities

Neighborhood
Scottsdale
Architecture Styles
Contemporary
View Description
Mountain(s)
Stories
1
Garage Spaces
4.0
Water Source
City Water
Pool
Heated
Roof
Foam
Lot Features
North/South Exposure, Desert Back, Desert Front, Gravel/Stone Front, Gravel/Stone Back, Synthetic Grass Frnt, Synthetic Grass Back
Heat Type
Natural Gas
Air Conditioning
Central Air
Laundry Room
Wshr/Dry Hook Up Only
Fireplace
Exterior Fireplace, Living Room
Appliances
Water Softener Owned, Reverse Osmosis, Refrigerator, Built-in Microwave, Disposal, Gas Range, Gas Oven, Gas Cooktop
Other Interior Features
Walk-in Pantry, Non-laminate Counter, Double Vanity, Eat-in Kitchen, 9 Flat Ceilings, No Interior Steps, Roller Shields, Kitchen Island, Separate Shwr Tub
Sewer
Public Sewer
Security Features
Fire Sprinkler System
Other Exterior Features
Private Pickleball Court(s)
Elementary School
Sequoya Elementary School
Middle School
Cocopah Middle School
High School
Chaparral High School
School District
Scottsdale Unified District
Sales Price
$5,084,090
Real Estate Tax
$2,108/yr

Downloads

7022 E PARADISE Drive

Schedule a Tour

We would love to help you see this beautiful home! As a full-service brokerage, we can help you tour. Please submit an offer, and answer questions about the buying process.

Thank you

for your interest in 7022 E PARADISE Drive, Scottsdale, AZ 85254

7022 E PARADISE Drive
Navigate
Scottsdale

Explore Scottsdale

read more

I'm Interested In

7022 E PARADISE Drive

Follow Us On Instagram